羞羞漫画在线观看,羞羞动漫在线观看,羞羞色色视频,午夜羞羞在线观看

    

    羞羞动漫在线观看减速停车控制的参数设置方法和应用

    时间:2019-11-26    作者:羞羞漫画在线观看变频    点击:

    一、    概述:
    堆垛机是整个自动化立体仓库的核心设备,通过手动操作、半自动操作或全自动操作实现把货物从一处搬运到另一处。它由机架(上横梁、下横梁、立柱)、水平行走机构、提升机构、载货台、货叉及电气控制系统构成。其原有的提升机构是通过SEW变频器驱动的,由于SEW变频器损坏,无法修复,客户急需生产,所以用丹佛斯FC302系列变频器进行替代。
    丹佛斯FC302系列变频器采用带传感器矢量控制闭环调速,完全能满足象堆垛机这样动态特性要求较高,并且在低频时输出高转矩以及转速精度要求较高的场合。由于堆垛机在工作过程中是频繁启动和停车的,在高速运行的状态下还要求堆垛性能够快速精准地停在目的地,因此在制动方面采用了动能制动,将电动机运行在发电状态下所回馈的能量消耗在制动电阻中,并且加入外部机械抱闸,从而达到快速停车的目的。
     
    二、    Sew接线图:

     
     
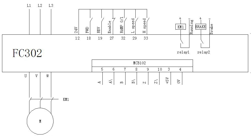
    三、    Danfoss  FC302  替代接线图及其参数

     
    四、    参数设置:
    参数号 参数名称 出厂值(代码) 设定值(代码)
    1-00 配置模式 开环转速 闭环转速
    1-01 电动机原理 VVC [3] 磁通矢量带反馈
    1-02 磁通矢量控制反馈源 24V编码器 [2] MCB102
    1-20 电动机功率 7.5kw 5.5kw
    1-24 电动机电流 16A 10.6A
    1-25 电机转速 1440 1430
    1-71 启动延时 0 0.2
    1-72 启动功能 惯性停车 [6] 起重机械制动释放
    2-23 激活制动延时 0       0.2
    2-24 停止延时 0 S 0 S
    2-25 抱闸释放时间 0.2 S 0.3 S
    2-26 转矩参考值 0 % 50 %
    2-27 转矩加减速时间 0.2 S 0.2 S
    2-28 增益放大倍数 1.00 1.00
    3-10.0 预置参考值1 0 % 10 %
    3-10.1 预置参考值2 0 % 30 %
    3-10.2 预置参考值3 0 % 40 %
    3-10.3 预置参考值4 0 % 70 %
    3-41 加速时间1   1.00 S
    3-42 减速时间1   1.00 S
    3-51 加速时间2   2.00 S
    3-52 减速时间2   2.00 S
    4-30 电动机反馈损耗功能 跳闸 警告
    5-11 19号端子输入 反向 [11] 启动反转
    5-13 29号端子输入 点动 [16] 预置参考值0
    5-14 32号端子输入 无功能 [34] 加减速位0
    5-15 33号端子输入 无功能 [17] 预置参考值1
    5-40.0 Relay1功能 无功能 [5] 运行
    5-40.1 Relay2功能 无功能 [32] 机械制动控制
    7-02 速度PID比例增益 0.015 0.05
    17-11 分辨率 1024 PPR 1024 PPR
           
     
    注:要做电机自适应
     
    五、    结束语
    羞羞动漫在线观看以应用于多个自动化立体仓库堆垛机控制系统中,它高质量的磁通矢量控制使堆垛机无论在高速运行或低速爬行中都表现出良好的速度稳定性以及很好的动态性能。堆垛机水平轴方向移动是一种大惯性负载,在减速过程中变频器经常工作在发电状态,FC302变频器通过外接制动电阻在四象限运行方面也表现出了良好的性能。


    声明:
    本文版权为上海羞羞漫画在线观看变频器有限公司所有,如需转载请注明出处。
    获取更多帮助和支持,请登陆上海羞羞漫画在线观看变频器有限公司网站 www.zgfhfw.com 。拨打上海羞羞漫画在线观看变频器专业服务中心7/24技术支持热线400-888-6560,随时与羞羞漫画在线观看联系。
     
    返回列表
     网站地图